昨年8/6にライブ配信させて頂き大好評いただいたサトウ工務店(新潟県三条市)とネイティブディメンションズ一級建築士事務所(新潟市)とのコラボセミナー『G2・G3住宅はどう作る?』の実践編を今年1月に引き渡しの新潟県内で住宅性能No.1のお家(施工事例はこちら)の図面、光熱費などの実績データを基に2/21(月)に実施いたしました!
たくさんのご参加本当にありがとうございました!!
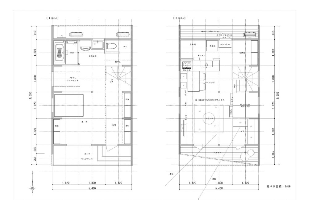
性能だけでなく、高いデザイン性にもご注目ください!
- 視聴方法:お申し込み頂いたメールアドレスにアーカイブ動画ご視聴用URLを送付させて頂きます
1/31新建ハウジングにも特集されました!
2/4 配信 新潟でNo.1性能の住宅にお邪魔しました
セミナーで取り扱う物件の動画です。予告編の感覚でぜひご視聴ください!
アーカイブ動画
リーフレット
ウェビナー参加者特典(応募締切ました。ありがとうございました!)

本セミナーと関係の深い「お家の性能」に関するサービスを参加者特典とさせて頂きました!
詳しくはセミナー内にて発表させていたします!
前回8/6開催『G2・G3セミナーはどう作る?』セミナーのアーカイブ動画
この機会に前回イベントのアーカイブ動画を配信させて頂きます。
セミナーの見どころ
図面・実データ公開

サーモグラフィを使ってこの図面を検証

外気温4℃の日に室内一階に21℃のエアコン一台設置した場合の一階と二階の温度比較をご覧ください!
一階






二階






使用機材:FLIR/FLIR 赤外線サーモグラフィ T540
スナップショット




